Enebolig en Fuente Álamo
310.000€
Detaljer
Referansenummer
N6877
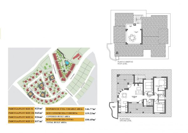
Flate
180m2
Soverom.
3
Baderom
2
NØKKELFERDIG VILLA I FUENTE ALAMO, MURCIA
Bolig med rekkehus, uavhengige og tomannsboliger i Fuente Álamo, Murcia.
Det er syv forskjellige husmodeller å velge mellom, designet for å passe alles smak.
Rustikk design kombinert med materialer av topp kvalitet og fokus på komfortabel stue, er det noe for enhver smak.
Beboerne i dette private fellesskapet av vakre, romslige hjem vil også kunne nyte sine egne felles hager og svømmebassenger.
Denne uvanlige designvillaen har 3 soverom og 2 bad, uavhengig kjøkken, stue med terrassedører som leder ut til den overbygde verandaen.
Et alternativ for et privat basseng mot en ekstra kostnad.
Fuente Álamo de Murcia er en by og kommune i regionen Murcia i Sør-Spania. Det ligger 22 km nordvest for Cartagena og 35 km sørvest for Murcia.
Byen ligger i bassenget til Mar Menor omgitt av fjellene Algarrobo, Los Gómez, Los Victorias og Carrascoy.
Vannet fra disse fjellene renner ned i Rambla de Fuente Álamo og deretter inn på Mar Menor.
Fuente Álamo ligger 30 minutter fra Murcia - Corvera flyplass.
Kjennetegn
850m2 Tomt
Chalet en , , Fuente Álamo
